


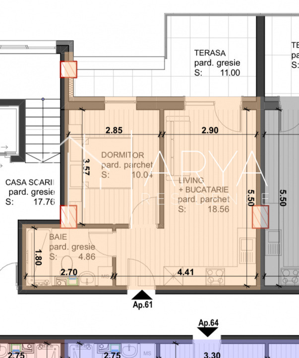
Îți prezentăm un apartament modern, situat la etajul 5 al unui bloc nou ultramodern, aflat într-o zonă accesibilă și bine conectată. Locuința are o suprafață construită de 51 mp și o terasă spațioasă de 11 mp, oferind atât confort, cât și funcționalitate.
Detalii și dotări:
• Bloc cu lift interior
• Posibilitate de parcare subterană (7.500 €) sau exterioară (3.000 €)
• Compartimentare practică și luminoasă
• Termen de finalizare: decembrie 2025
Facilități în apropiere:
• Lidl și farmacie la 2 minute de mers pe jos
• Grădiniță chiar peste drum
• Brutărie, restaurante și magazine diverse în imediata vecinătate
Acest apartament este ideal atât pentru locuință proprie, cât și pentru investiție, combinând avantajele unei zone liniștite cu accesul rapid la toate serviciile de zi cu zi.
Contact:
Telefon: 0741701397
Email: office@aryaresidence.ro
Website: www.aryaresidence.ro